Cœur de village

Grignon, France

Gemeindezentrum mit 35 Wohnungen, darunter zehn Seniorenwohnungen und Gewerbeflächen

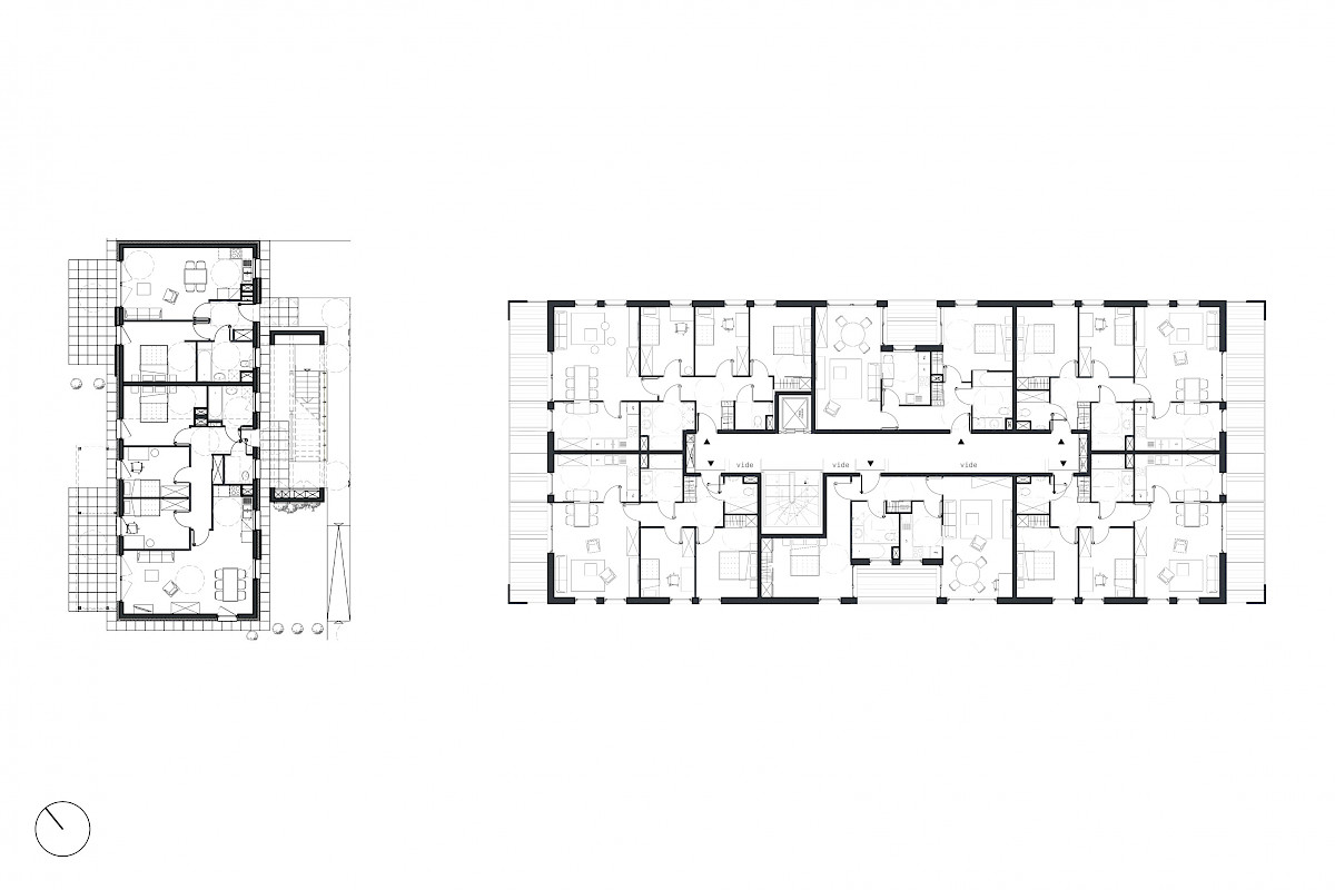
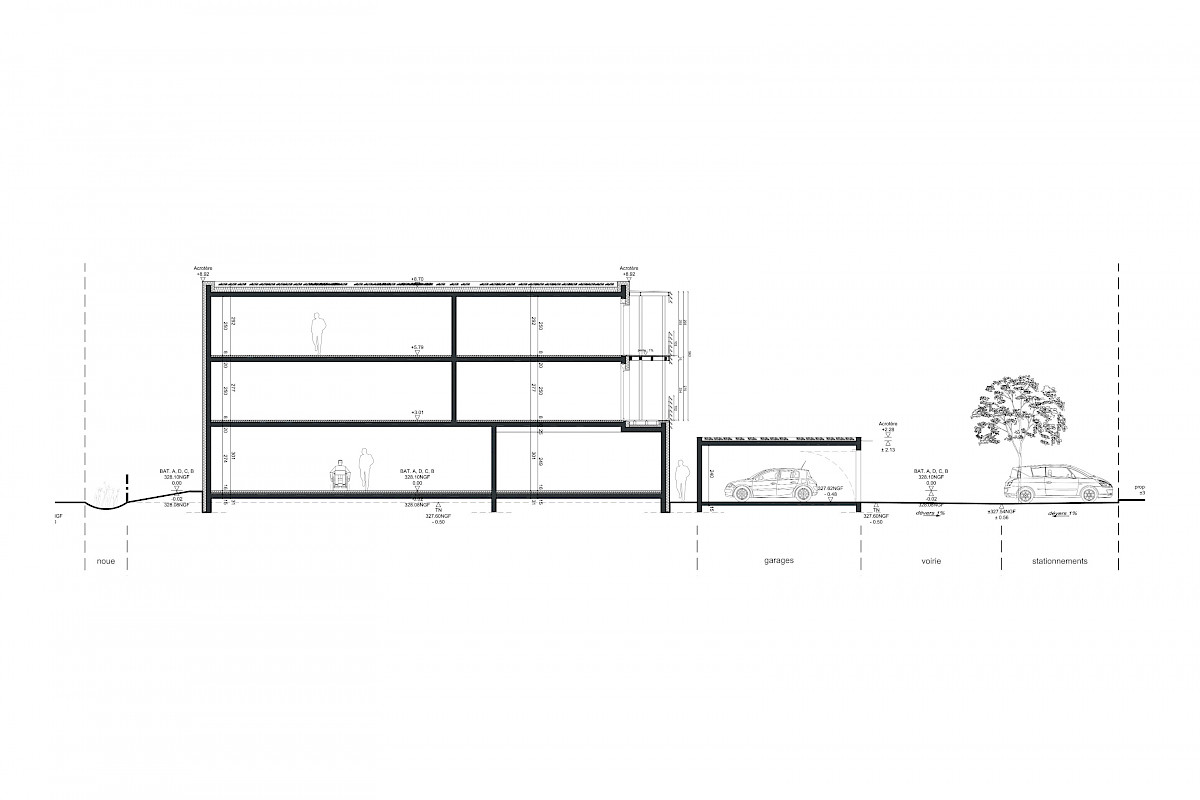
Le terrain à urbaniser est aujourd’hui composé d’une étendue de stationnements, d’une prairie et d’une large voie automobile. La proposition de partition de ce vaste terrain opte pour un dispositif inspiré de l’existant avec création d’une généreuse rue urbaine. Ce dispositif, consommateur de terrains imperméabilisés, n’offre aucune continuité, et risque d’apparaître comme un banal espace envahi par les véhicules motorisés. Notre proposition privilégie un axe de liaison, principalement destiné aux piétons et aux cycles. Son gabarit permet toutefois de laisser ouvert la voie pour les véhicules. Elle permet aussi le retournement de l’entrée de l’école sur un espace public apaisé et le maintien du caractère de circulation douce du coeur de village, garant de qualité de vie. L’architecture se positionne en intégrant les propriétés écologiques, économiques et anthropiques jugées les plus importantes. Elle propose un habitat intermédiaire compact, s’élevant sur R+2 au maximum, avec des prospects généreux, bénéficiant de double orientation.

Plan de situation
  • Statut
  • Maître d'ouvrage

    OPAC de Savoie

  • Architecture

    GIES ARCHITEKTEN BDA / Michel Spitz Architecte, Colmar

  • Bureaux d'études

    C.T.E., Evian les Bains (Structure); Fluitec, Tassin-la-Demi-Lune (TGA); Atelier Vies-Ages, Evian les Bains (Kostenplanung) 

  • Surface area

    3.545 m²

  • Concours

    1. Preis / 2011

  • Photos

    Michel Spitz

  • Catégories public, transformer, repenser