L'école maternelle St. Martin

Münsingen, Allemagne

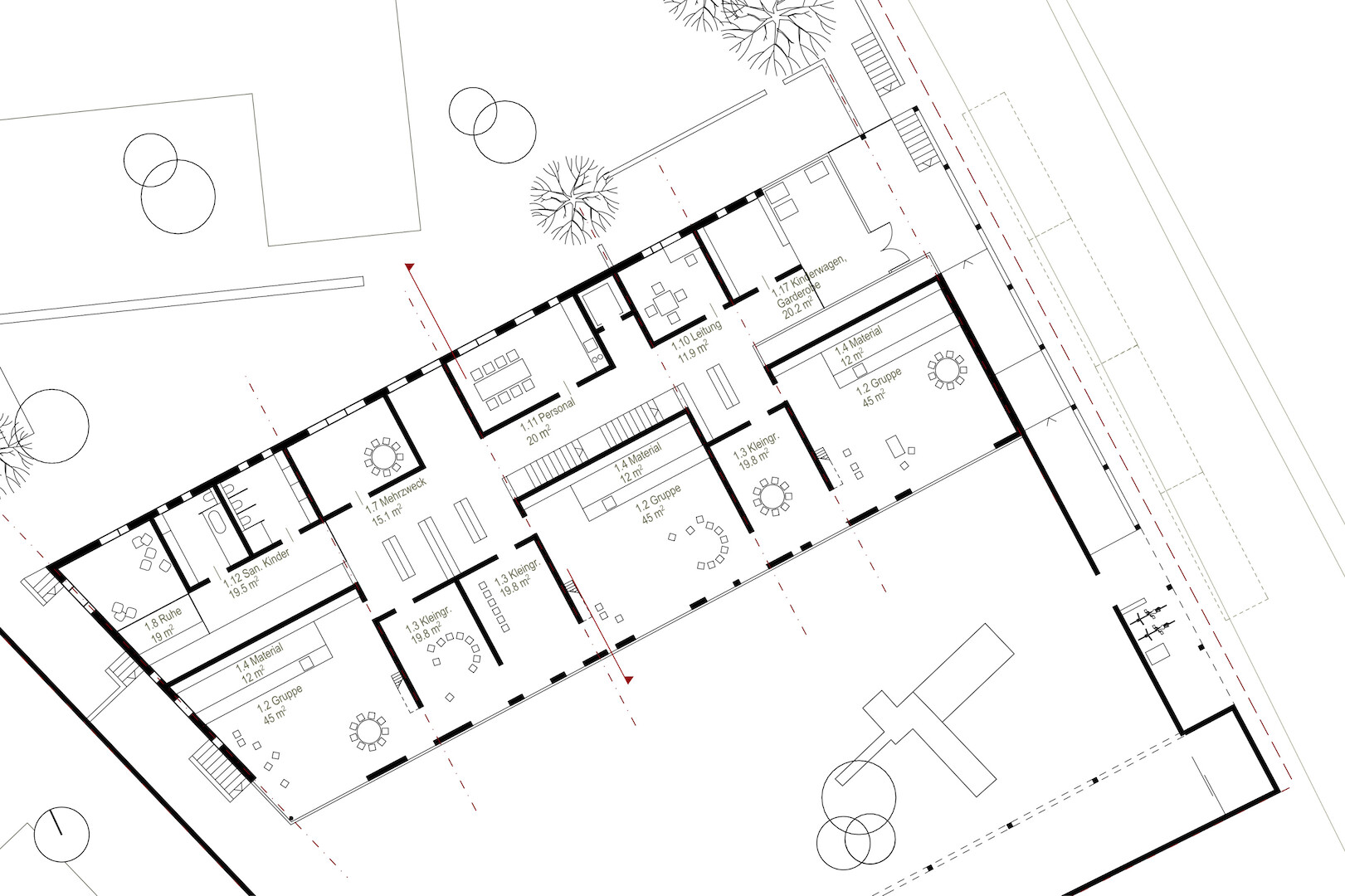
Projekt für 75 Kinder zwischen einem und sechs Jahren

La nouvelle construction se déploie le long des courbes de niveau sur deux étages, qui offrent à chaque fois un rapport de plain-pied avec le terrain. La disposition sur deux niveaux préserve au maximum les espaces extérieurs, qui sont structurés par le bâtiment.

Plan de situation
  • Statut

    Terminé en 2014

  • Maître d'ouvrage

    Paroisse catholique Christus König Münsingen

  • Architecture

    GIES ARCHITEKTEN BDA

  • Paysage

    Pit Müller, Freiburg 

  • Bureaux d'études

    LSI-Ingenieure, Bad Urach (Structure); Ingenieurbüro Kiefer, Kirchheim unter Teck (Bauphysik / TGA); Brandschutzbüro Eisenbraun, Lahr (Brandschutz); Daniel Strobel, Münsingen (Sicherheitskoordination - SiGeKo)

  • Surface area

    705 m²

  • Distinctions

    1er prix/ 2012

  • Photos

    Markus Löffelhardt

  • Catégories public, écoresponsable, repenser

„Das Maximum an guten und vielfältigen Freiflächen ist die entscheidende Qualität für die neue Kindertageseinrichtung (...)"

aus dem Juryprotokoll