Habiter & travailler

Freiburg-Vauban, Allemagne

Un projet-pilote d’habitat écologique

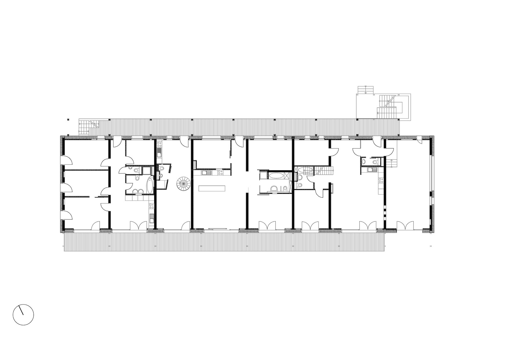
Pionnier en son genre, le projet « Habiter et travailler » est l´une des premières opérations en autopromotion du quartier Vauban et constitue en soi un projet-pilote d’habitat écologique. Premier collectif d’habitation passif en Allemagne, c’est avant tout à sa compacité, à son orientation et à la performance de son enveloppe que W&A doit l’extrême sobriété de ses besoins énergétiques. À cet aspect fondamental, se greffe par ailleurs la gestion de l’eau, des eaux usées et des déchets dans un concept écologique global. Conçu avec et pour les usagers, ce bâtiment de quatre niveaux s’articule sur un plan libre permettant de nombreuses variations dans les aménagements intérieurs et assurant son adaptabilité à d’éventuelles modifications d’usages.

Plan de situation
  • Statut

    Teminé en 1999

  • Maître d'ouvrage

    Baugruppe Wohnen & Arbeiten

  • Architecture

    COMMON & GIES ARCHITEKTEN

  • Bureaux d'études

    Fraunhofer-Institut für Solare Energiesysteme mit solares bauen GmbH, Freiburg (Thermique); Wolfgang Feth, Freiburg (Structure); Krebser und Freyler, Teningen (BE fluides); Jörg Lange, Freiburg (Concept sanitaire)

  • Distinctions

    “Gelungene Siedlungen – attraktive Wohnquartiere – lebendige Nachbarschaft“, Land Baden-Württemberg

  • Photos

    Guido Kirsch / Pierre Gendron

  • Catégories communautaire, écoresponsable, en réseau

«Le projet Passivhaus Wohnen & Arbeiten en autopromotion est un projet pionnier de la construction écologique. Il s‘agissait du premier immeuble d‘habitation répondant aux normes du habitat passif en Allemagne.»

Christine Falkner