Maison U

Freiburg, Allemagne

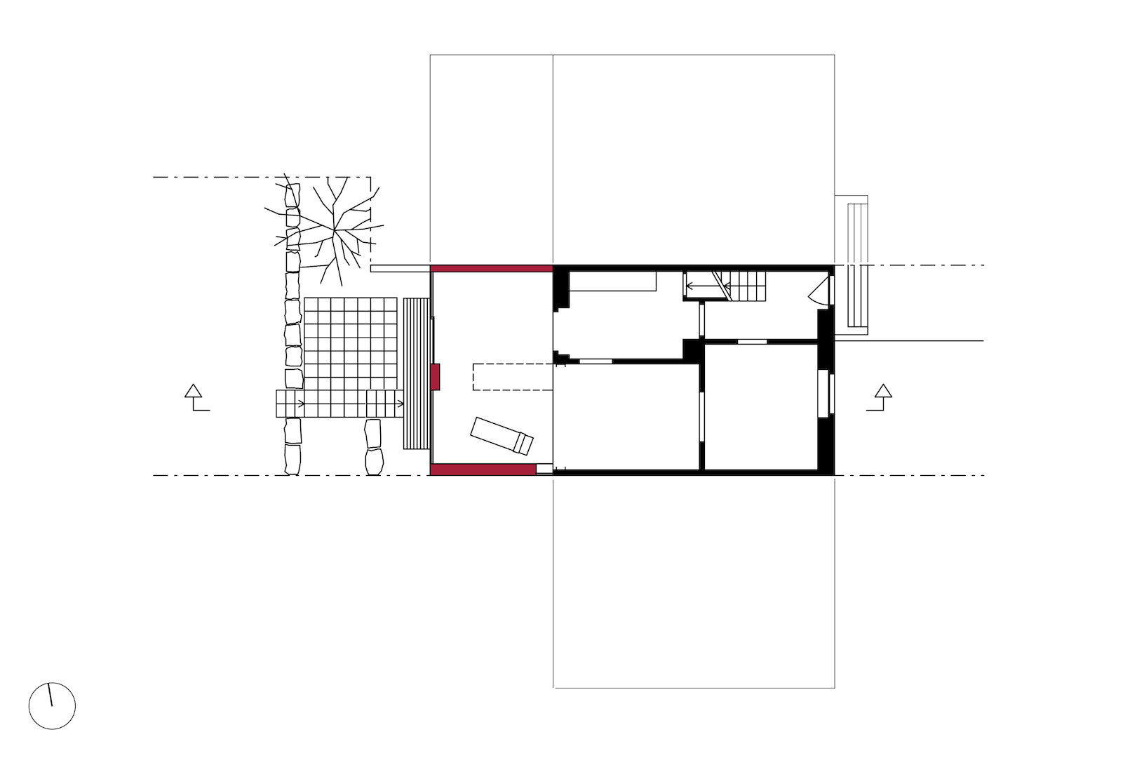
À la faveur d’une petite extension au rez-de-chaussée de cette maison des années 1920, la qualité d’habitabilité des pièces de vie s’est ostensiblement transformée. Une partie de la façade sur jardin au rez-de-chaussée est supprimée et remplacée par un portail d’acier qui soutient désormais le haut du mur et marque la transition entre l’ancien et le nouveau. Un changement de niveau et de matérialité, ainsi qu’une fente lumineuse dans l’une des parois latérales renforcent cette rupture. L’ancien salon se prolonge désormais dans un espace vaste, lumineux, très largement ouvert sur le jardin et doté d’un balcon qui flotte au dessus de la cour à la manière d’un quai. Le rapport intérieur-extérieur du lieu en est métamorphosé.

Plan de situation
  • Statut

    Terminé en 2004

  • Maître d'ouvrage

    Privé

  • Architecture COMMON & GIES ARCHITEKTEN
  • Paysage

    faktorgruen, Denzlingen

  • Surface area

    95 m²

  • Photos Guido Kirsch
  • Catégorie transformer