"Im Türmle"

Ulm, Allemagne

Quartier à zéro émission de carbone

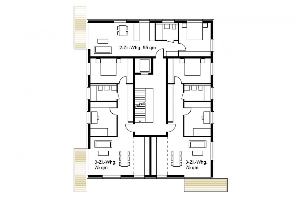
L’objectif d’un quartier à zéro émission de CO2 pose un défi majeur, surtout lorsqu’il se superpose à celui de construire à faibles coûts. Dans la mesure où une offre diversifiée pouvant répondre aux besoins de futurs usagers est souhaitée, trois types d’habitation sont proposés. Chacun présente une grande compacité permettant de rationnaliser les développés de façade et ainsi, de minimiser les surfaces de déperdition de chaleur, les coûts d’investissement, de maintenance et de fonctionnement, ainsi que le bilan CO2. Le concept énergétique englobe les questions de l’énergie grise, de la réduction des déplacements de sol, de l’efficacité structurelle, de la gestion des eaux (pluviales et grises) et des énergies renouvelables.

  • Statut

    Mehrfachbeauftragung 2010

  • Maître d'ouvrage

    Ulmer Wohnungs- und Siedlungs-Gesellschaft mbH

  • Architecture

    GIES ARCHITEKTEN BDA

  • Conseil en énergie

    TRANSSOLAR, Stuttgart

  • Surface area

    28.270 m² (Surface brute de plancher)

  • Catégories public, écoresponsable, transformer, repenser