Quartier d’habitation Tullastraße

Wörth am Rhein, Allemagne

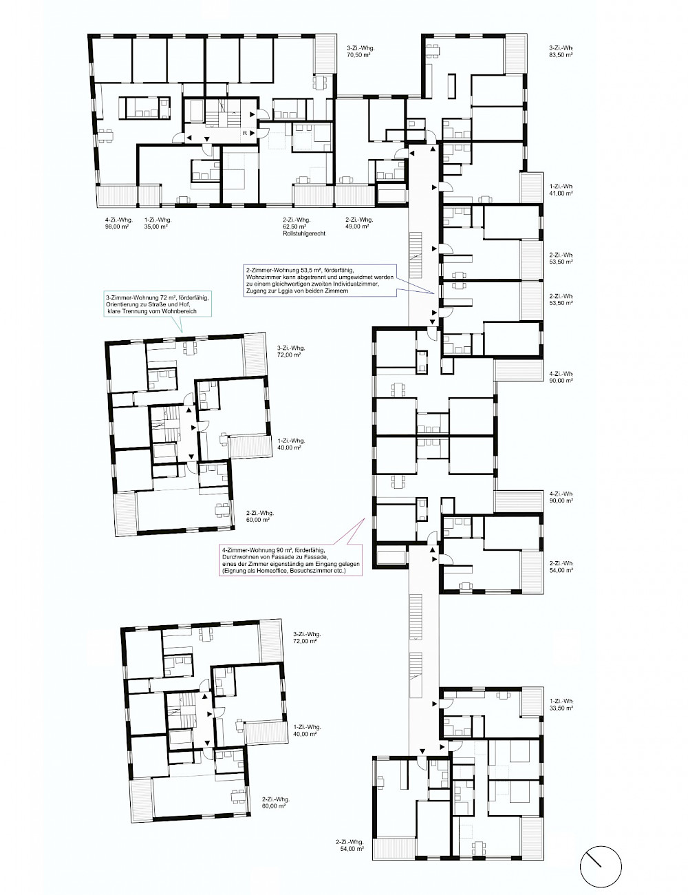
Quartier d’habitation en construction bois

Le bâti est modelé suivant le principe de la soustraction. La fracturation des volumes lie densité et légereté et crée une transition douce entre la salle d’une côté et le pavillonaire de l’autre. Une nouvelle place au nord-est, marqué par un gabarit élevé, constitue le germe d‘une urbanité dans ce quartier.

Plan de situation
  • Statut

    En cours de planification

  • Maître d'ouvrage

    Wohnbau Wörth am Rhein GmbH

  • Architecture

    GIES ARCHITEKTEN BDA

  • Paysage

    freisign Landschaftsarchitektur, Freiburg

  • Surface

    4.319 m²

  • Concours

    1re prix / 2020

  • Maquette

    Jochen Zimmermann, Freiburg

  • Catégories communautaire, transformer, repenser